Appartement B2.2 à Differdange
- Vente
- Réf. 14851
451 370,00 €
Caractéristiques
-
Chambres
2
-
Surface
75.62㎡
-
Parking
Emplacement
Description
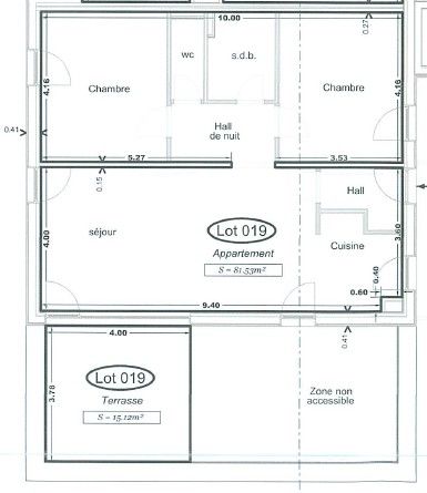
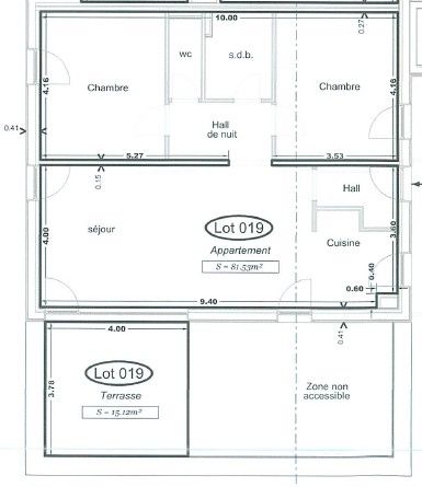
Appartement en vente abordable d'une surface de 75.62 m2, au 2ème étage d'une résidence de 2017, comprenant 2 ch-à-c, une cuisine équipée ouverte sur séjour, une terrasse 6.14 m2, un jardin, une cave et un emplacement intérieur. Terrain sous droit d'emphytéose. Candidatures ouvertes jusqu'au 25 juin 2026 pour un ménage avec maximum 2 enfants à charge qui répond à la condition d'éligibilité pour un logement abordable. Conditions, documents et plans : voir sous "TELECHARGEMENTS". Pour plus d’informations veuillez contacter le service commercial au 26.26.44-710 ou écrire à « service_vente@fondsdulogement.lu »
Caractéristiques
Ascenseur
Cave
Buanderie
Terrasse
Jardin
Cuisine équipée
Cuisine ouverte
Baignoire
WC séparé
Données énergétiques
-
Classe énergétique
B -
Classe d’isolation thermique
A -
Émission de CO²
A
Localisation
Cette carte interactive est masquée car vous avez refusé les cookies MapBox. Pour la voir, veuillez changer vos préférences.
Changer mes préférences34, Terrasses de la Ville L-4564 DIFFERDANGE Luxembourg
Vous êtes intéressé ?
Pour être tenu informé des futurs projets en vente vous pouvez remplir le formulaire d’inscription à l’achat.
Vous souhaitez connaître vos capacités de financement ?
Simulez votre prêt (sur bcee.lu)Découvrez également
Voir tous les biens
Appartement B2.2 à Differdange
451 370,00 €